8 bedroom House in Estepona

  • €799,000

Overview

Property ID: AVH-R5284240
  • AVH-R5284240
  • Property ID
  • Villa
  • Property Type
  • 8
  • Bedrooms
  • 4
  • Bathrooms
  • 250

Description

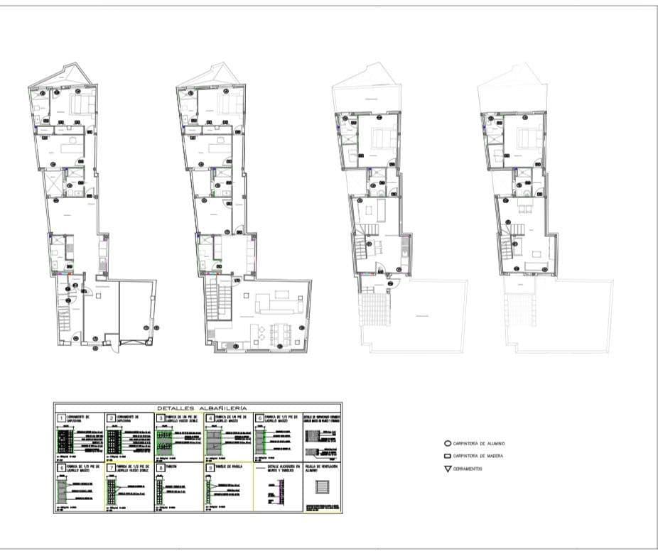
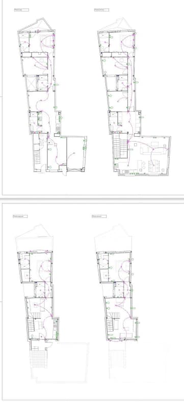
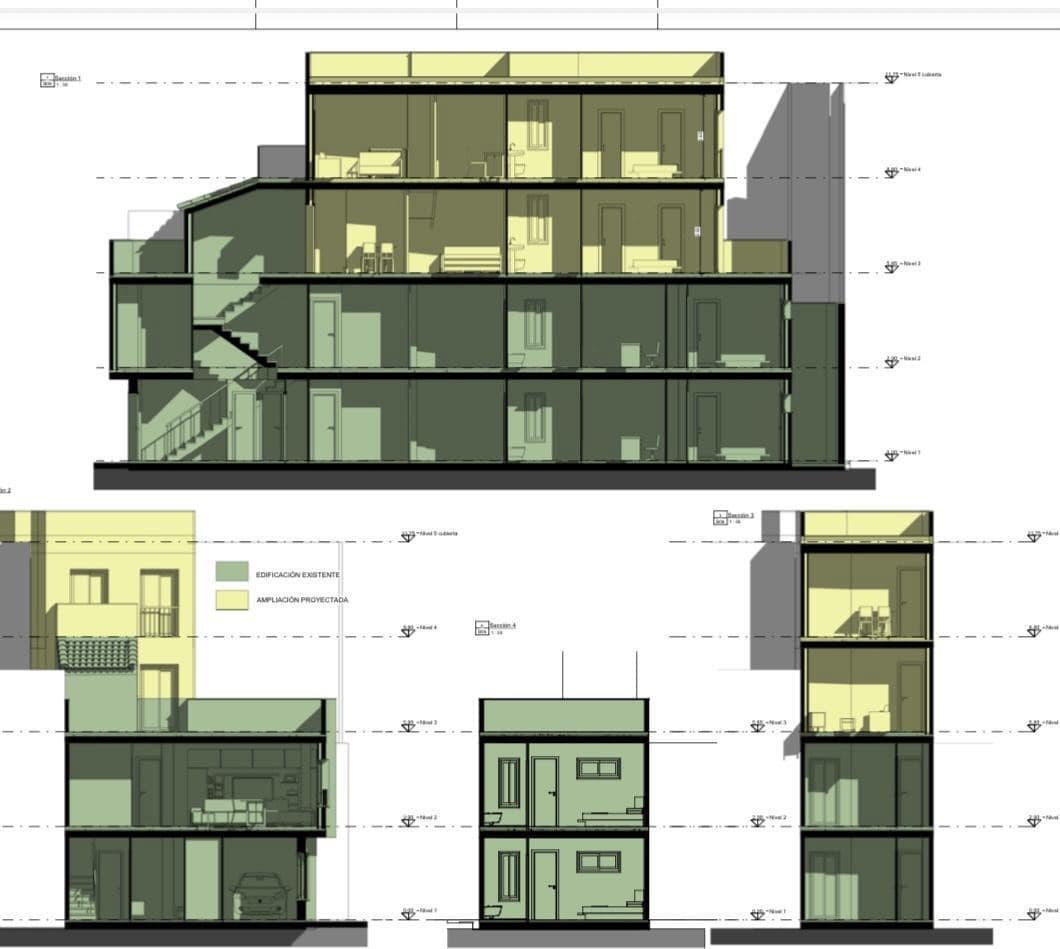
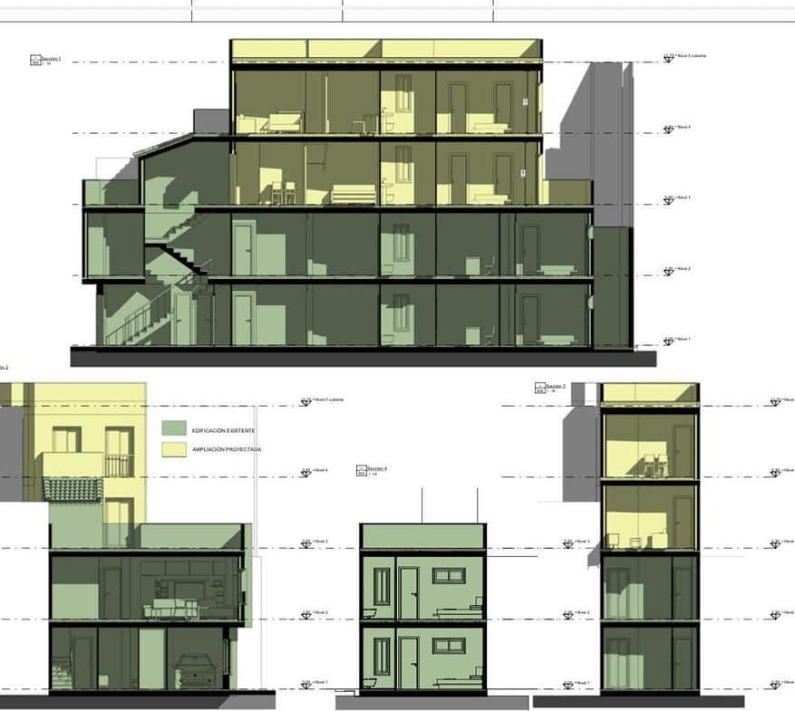
Fantastic opportunity to renovate in one of Estepona's most central areas, on a 122 m2 plot with a current 250 m2 building distributed across the ground, first, and second floors, and the possibility of adding another floor.
A permit is in place to add an attic level, which would bring the total to four levels. A detailed project report is available.

The current layout is as follows:
– Ground Floor (85 m2): spacious living room, four bedrooms, and two bathrooms. Spaces with abundant natural light and excellent potential for redistribution to suit your needs.

– First Floor (92 m2): living room, four bedrooms, and two bathrooms, offering great versatility to create spacious rooms or even two separate units.

– Second Floor: features two large terraces with incredible potential:
• 54 m2 terrace ideal for a chill-out area, private garden, or pool/solarium.

• 33 m2 terrace, perfect for an outdoor dining area or reading nook with views.

Project and permit for the renovation and expansion of 3 dwellings!

This property stands out for its large built area, its versatility, and the possibility of adding another floor, making it an exceptional investment for a family residential project, development, or holiday rental.

Don't miss this opportunity!

 

Experience Exceptional Service Only With Avocado Homes, Marbella.

Avocado Homes offer our clients an unrivalled service, from first contact to moving into your new home in the sun, we will be with you on your journey all the way. Our aim is to exceed all expectations delivering excellent service, up to date real time property listings, and a customer experience that is unrivalled in the real estate industry.

Avocado has access to the best lawyers, most competitive mortgage solutions and the best money exchange rates available.

Put your trust in us to deliver an informative, caring, no hidden cost solution that will help to make your purchase in the sun stress free, easy and enjoyable.

Avocado Homes –  House for sale in Estepona

Address

  • Address Estepona, Málaga, Spain
  • City Estepona
  • State/county Málaga
  • Country Spain

Details

Updated on February 19, 2026 at 12:28 am
  • Property ID: AVH-R5284240
  • Price: €799,000
  • Property Size: 250
  • Land Area: 112
  • Bedrooms: 8
  • Bathrooms: 4
  • Property Type: Villa
  • Property Status: For Sale

Compare listings

Compare
Avocado Homes
  • Avocado Homes