9 bedroom House in Torreblanca

  • €1,200,000

Overview

Property ID: AVH-R5039632
  • AVH-R5039632
  • Property ID
  • Villa
  • Property Type
  • 9
  • Bedrooms
  • 5
  • Bathrooms
  • 256

Description

Investment Opportunity –3 Renovation Villas in Torreblanca

Discover this exclusive set of three detached villas nestled in the heart of Torreblanca, close to all amenities.

Full renovation project ideal for investors, developers, or buyers looking to design their dream homes from the ground up.

Each villa sits on an independent plot and offers:

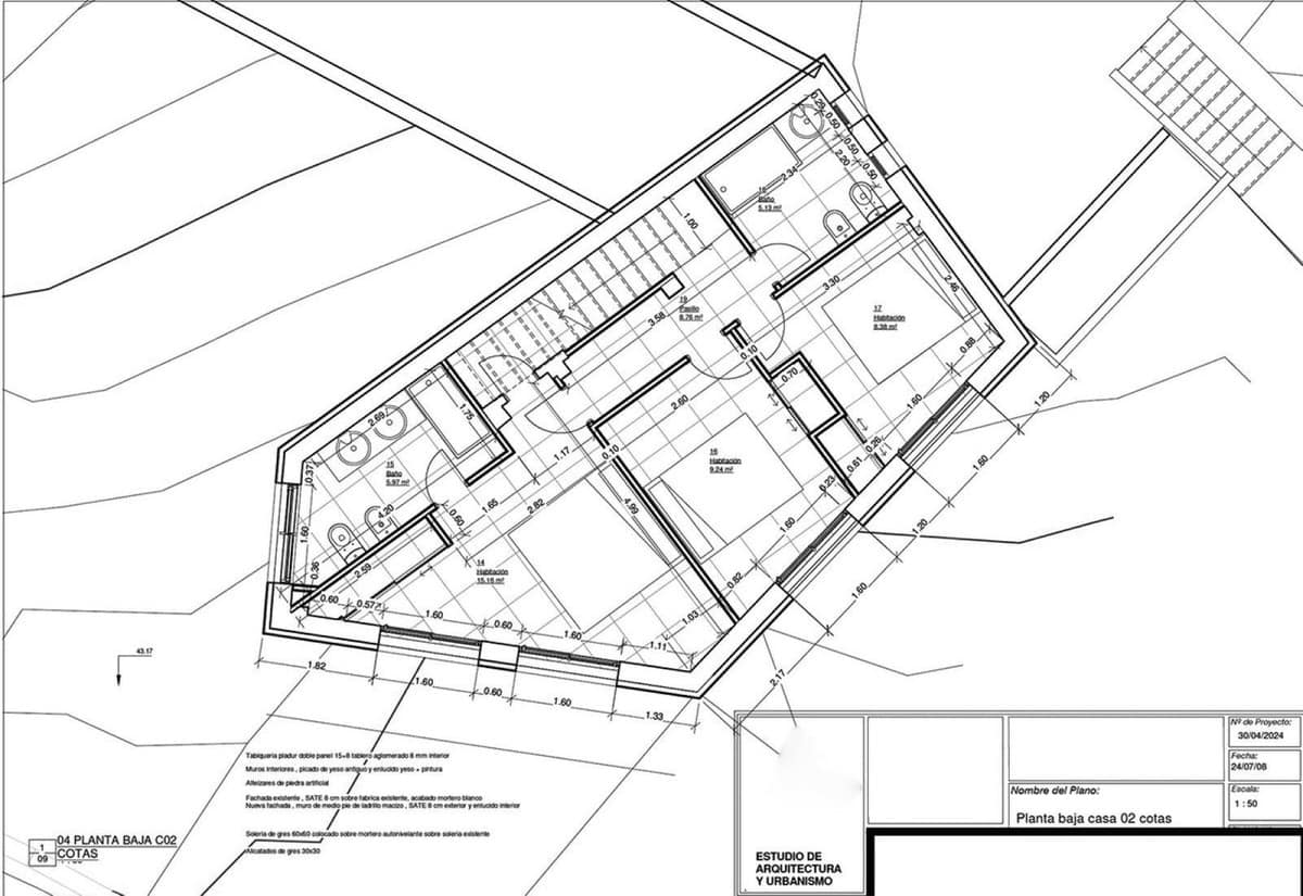
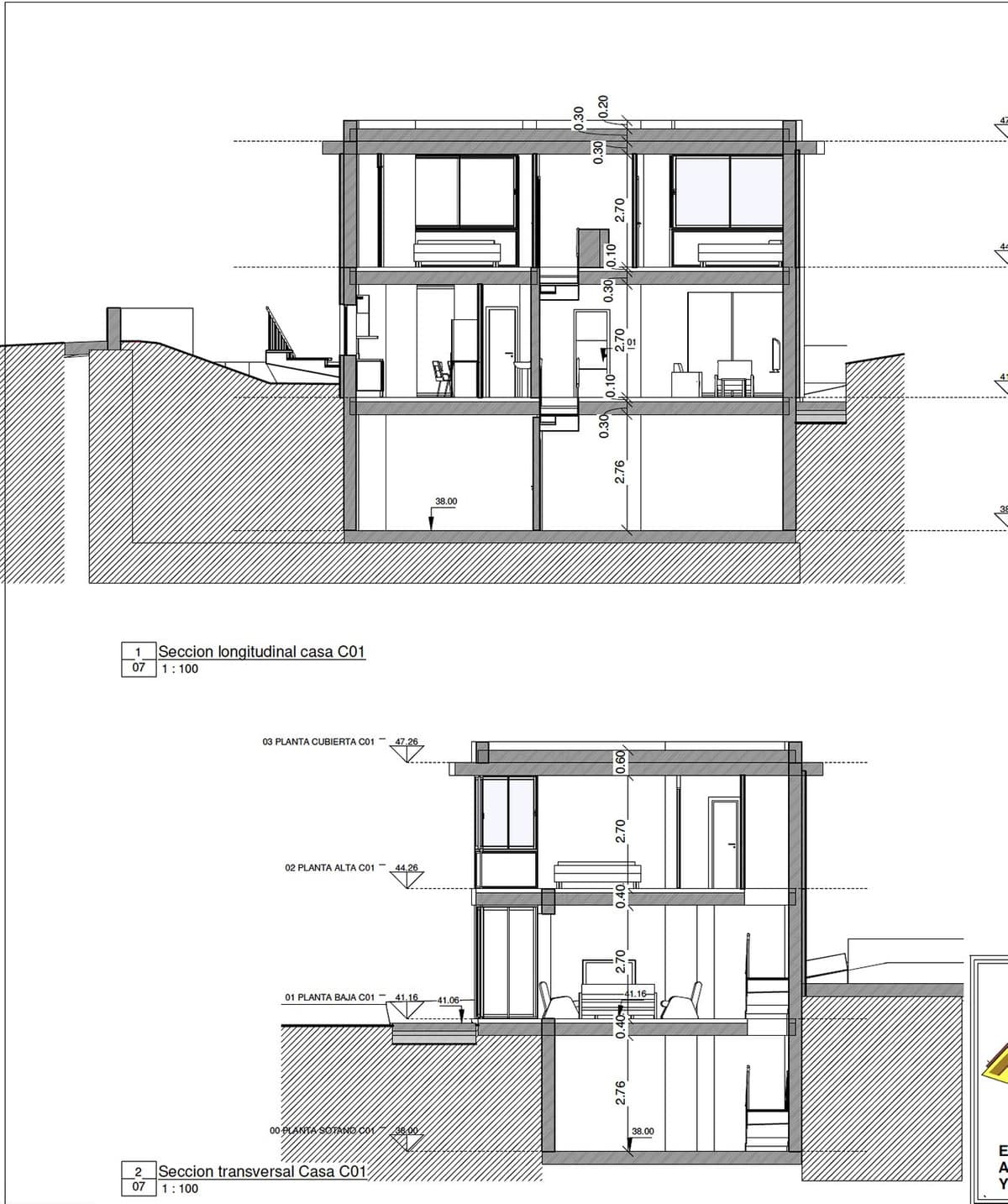
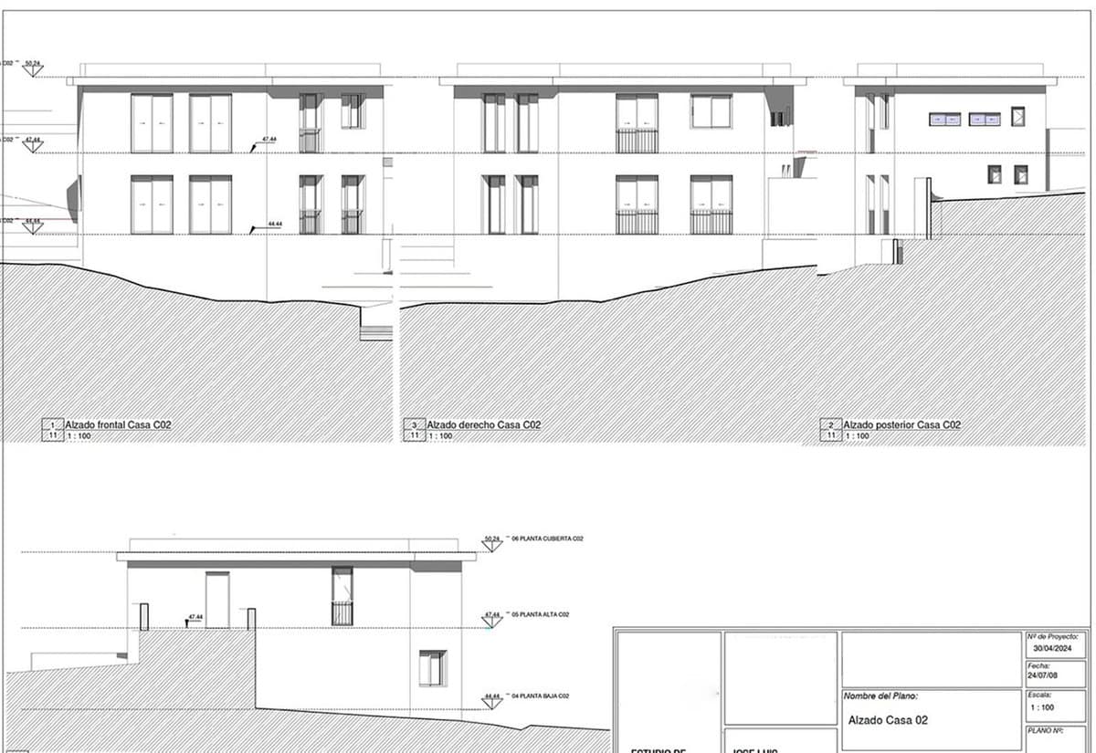
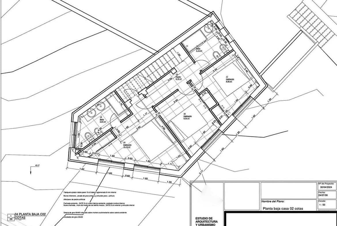
Built areas ranging from 120 to 135 m²

Private gardens and outdoor space

Possibility to customize layout and design

Peaceful residential surroundings with sea and mountain views

Located just minutes from:

The vibrant town center of Fuengirola

Schools, restaurants, and local shops

The coast and motorway access

Whether you're looking to renovate and sell, rent, or create a boutique holiday rental complex, this multi-villa renovation project is a rare find with outstanding potential.

Sold as a package – ideal for a development or family compound project.

Contact us for floor plans, site visit, and renovation estimates!

Detached Villa, Torreblanca, Costa del Sol.
3 Bedrooms, 2 Bathrooms, Built 0 m².

Setting : Suburban, Close To Sea, Close To Town, Close To Schools.
Condition : Renovation Required, Restoration Required.
Pool : Communal.
Views : Sea, Garden.
Features : Covered Terrace, Private Terrace, Double Glazing.
Garden : Communal.
Utilities : Electricity.
Category : Holiday Homes, Investment, Resale, With Planning Permission, Contemporary.

 

Experience Exceptional Service Only With Avocado Homes, Marbella.

Avocado Homes offer our clients an unrivalled service, from first contact to moving into your new home in the sun, we will be with you on your journey all the way. Our aim is to exceed all expectations delivering excellent service, up to date real time property listings, and a customer experience that is unrivalled in the real estate industry.

Avocado has access to the best lawyers, most competitive mortgage solutions and the best money exchange rates available.

Put your trust in us to deliver an informative, caring, no hidden cost solution that will help to make your purchase in the sun stress free, easy and enjoyable.

Avocado Homes –  House for sale in Torreblanca

Address

  • Address Torreblanca, Málaga, Spain
  • City Torreblanca
  • State/county Málaga
  • Country Spain

Details

Updated on December 24, 2025 at 12:40 am
  • Property ID: AVH-R5039632
  • Price: €1,200,000
  • Property Size: 256
  • Land Area: 1526
  • Bedrooms: 9
  • Bathrooms: 5
  • Property Type: Villa
  • Property Status: For Sale

Compare listings

Compare
Avocado Homes
  • Avocado Homes